recherche immobilières sur mobile

Location Appartement Courseulles-sur-mer 3 pièces 52 m2 Calvados (14470) - 695 € / mois

location appartement 3 pièces 52 m² 2 chambres région Calvados

695 €/mois


Location Appartement 3 pièces COURSEULLES-SUR-MER 14470
Annonce Location 3 pièces Appartement Courseulles-sur-mer 14

Description

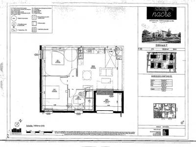
A COURSEULLES SUR MER, dans la résidence neuve LES TERRASSES DE NACRE, nous vous proposons ce T3 de 52.43m² situé au 2e étage du bâtiment F. Il se compose d'un séjour cuisine de 24.35m², donnant sur une loggia de 5.94m², de deux chambres et d'une salle d'eau avec WC. Une place de parking accompagne le logement. Chauffage et eau chaude individuels gaz. Entretien parties communes, entretien ascenseur, compris dans les provisions sur charges mensuelles et donnant lieu à une régularisation annuelle. Les honoraires de location de 678 euros TTC (à la charge du locataire) incluent le montant de rédaction des états des lieux facturé pour 156 euros TTC, après réalisation lors de l'entrée dans les lieux. Disponibilité immédiate. Plus de détails sur notre site AFEDIM. Les informations sur les risques auxquels ce bien est exposé sont disponibles sur le site Géorisques :
Retour
Autres photos
Plan
Favoris

Contacter l'agence

CM-CIC GESTION IMMOBILIERE
2 Rond Point des Antons CS70304
44703 ORVAULT

Toutes les annonces immobilières de CM-CIC GESTION IMMOBILIERE
08.09.10.28.80 ou 08.10.00.69.36


Recevoir des annonces similaires

Location à proximité de Courseulles-sur-mer