recherche immobilières sur mobile

Location Appartement Noisy-le-sec 2 pièces 48 m2 Seine saint denis (93130) - 890 € / mois

location appartement 2 pièces 48 m² région Seine saint denis

890 €/mois


Location Appartement 2 pièces NOISY-LE-SEC 93130
Annonce Location 2 pièces Appartement Noisy-le-sec 93

Description

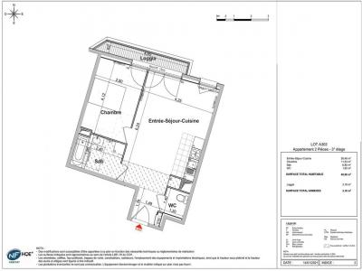
A NOISY LE SEC - Dans la résidence neuve NOVO, nous vous proposons un logement T2 N°A303 de 48.66 m² sis au 3e étage avec ascenseur. Il se compose, une pièce de vie de 28.46 m² avec cuisine aménagée et équipée (plaque four hotte) ouverte sur séjour et donnant sur une loggia de 3.18m², une chambre de 11,53m², une salle de bains avec baignoire et meuble vasque. WC séparés. Chauffage et eau chaude en collectif urbain, entretien des parties communes et espaces verts communs, compris dans les provisions sur charges mensuelles et donnant lieu à une régularisation annuelle. Les honoraires de location TTC (à la charge du locataire) incluent le montant de rédaction des états des lieux facturé pour 145 euros TTC, après réalisation lors de l'entrée dans les lieux. Disponibilité prévisionnelle courant Septembre 2025. Plus de détails sur ce logement sur notre site internet AFEDIM. Logement neuf en cours de construction, DPE à venir. Les informations sur les risques auxquels ce bien est exposé sont disponibles sur le site Géorisques :
Retour
Autres photos
Plan
Favoris

Contacter l'agence

CM-CIC GESTION IMMOBILIERE
2 Rond Point des Antons CS70304
44703 ORVAULT

Toutes les annonces immobilières de CM-CIC GESTION IMMOBILIERE
08.09.10.28.80 ou 08.10.00.69.36


Recevoir des annonces similaires

Location à proximité de Noisy-le-sec