recherche immobilières sur mobile

Location Appartement Sennecey-les-dijon 3 pièces 54 m2 Cote d'or (21800) - 740 € / mois

location appartement 3 pièces 54 m² 2 chambres région Cote d'or

740 €/mois


Location Appartement 3 pièces SENNECEY-LES-DIJON 21800
Annonce Location 3 pièces Appartement Sennecey-les-dijon 21

Description

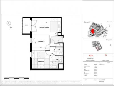
SENNECEY LES DIJON. Dans la résidence neuve REGENT'S PARK, nous vous proposons un appartement T3 n°A13 de 54.25m², situé au 1er étage, il est composé d'un séjour-cuisine de 17.90m², d'une salle de bains de 5.05m², de deux chambres de 10.05m² et 12.20m² et d'un balcon de 4m². A l'extérieur un parking double n°39 et 42. Chauffage et eau chaude individuelle. Eau froide, entretien parties communes et espaces verts communs compris dans les provisions sur charges mensuelles et donnant lieu à une régularisation annuelle. Les honoraires de location 596 euros TTC (à la charge du locataire) incluent le montant de rédaction des états des lieux facturé pour 162 euros TTC, après réalisation lors de l'entrée dans les lieux. Pour plus de détails sur ce logement, vous pouvez consulter la fiche descriptive de ce bien, sur notre site internet AFEDIM. Disponibilité courant août. Appartement neuf en cours de construction - DPE en attente. Les informations sur les risques auxquels ce bien est exposé sont disponibles sur le site Géorisques :
Retour
Autres photos
Plan
Favoris

Contacter l'agence

CM-CIC GESTION IMMOBILIERE
2 Rond Point des Antons CS70304
44703 ORVAULT

Toutes les annonces immobilières de CM-CIC GESTION IMMOBILIERE
08.09.10.28.80 ou 08.10.00.69.36


Recevoir des annonces similaires

Location à proximité de Sennecey-les-dijon