Annonces de location d'appartement 4 pièces sur Cluses
Recherche d'annonces : appartements 4 pièces à louer sur Cluses.
Vous cherchez à louer un logement à Cluses ? Repimmo propose des annonces de locations d'appartement. Les annonces sont publiées par les particuliers et les agences immobilières de Cluses et ses alentours.
page 1/1
Annonce gratuite du 05/02/2026.

1
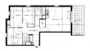
Location appartement 83 m2 sur Cluses ( 74300 - Haute savoie )
Annonce n°18935786 : A001 Le Clusoé A SAISIR MAGNIFIQUE T4TRAVERSANT DE 83M² AVEC UNE TERRASSE A L'INTERIEUR D'UNE RESIDENCE RECENTE DE STANDING A FAIBLE CONSOMMATION ENERGETIQUE. Il se compose d'un séjour, cuisine équipée (hotte, plaques vitro, four, meu...
- Pièces4
- Surface83 m2
Détails
1
Toutes les annonces de location sur Cluses
Passer une annonce gratuite sur Cluses
Propriétaires sur Cluses, vous souhaitez louer votre appartement ? Passez une annonce immobilière gratuite sur Cluses en l'ajoutant immédiatement aux 12 annonces immobilières déjà en ligne.
Publier une annonceLocation à proximité de Cluses