recherche immobilières sur mobile

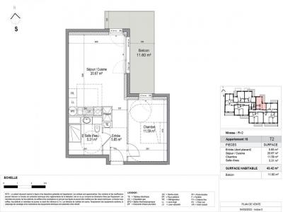
Apartment for rent in For rent Laxou 2 rooms 43 m2 Meurthe et moselle (54520)

for rent apartment 2 rooms 43 m² region Meurthe et moselle

645 €/month


For rent Laxou 2 rooms 43 m2 Meurthe et moselle (54520) photo 0
For rent Laxou 2 rooms 43 m2 Meurthe et moselle (54520) photo 1

Description

Back
More photos
Map
Favorites

Contact

CM - CIC GESTION IMMOBILIERE
2 rond point des AntonsBP70904
44703 ORVAULT
08.09.10.28.80


Receive similar ads

For rent near Laxou