recherche immobilières sur mobile

Apartment for rent in For rent Mulhouse 3 rooms 66 m2 Haut rhin (68100)

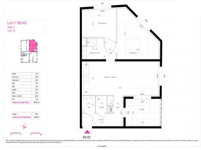
for rent apartment 3 rooms 66 m² 2 rooms region Haut rhin

807 €/month


For rent Mulhouse 3 rooms 66 m2 Haut rhin (68100) photo 0
For rent Mulhouse 3 rooms 66 m2 Haut rhin (68100) photo 1

Description

Back
More photos
Map
Favorites

Contact

CM-CIC GESTION IMMOBILIERE
2 Rond Point des Antons CS70304
44703 ORVAULT
08.09.10.28.80 ou 08.10.00.69.36


Receive similar ads

For rent near Mulhouse