recherche immobilières sur mobile

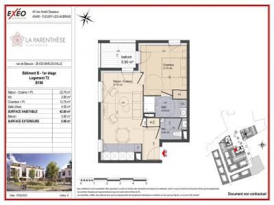
Apartment for rent in For rent Barjouville 2 rooms 42 m2 Eure et loir (28630)

for rent apartment 2 rooms 42 m² region Eure et loir

635 €/month


For rent Barjouville 2 rooms 42 m2 Eure et loir (28630) photo 0
For rent Barjouville 2 rooms 42 m2 Eure et loir (28630) photo 1

Description

Back
More photos
Map
Favorites

Contact

CM - CIC GESTION IMMOBILIERE
2 rond point des AntonsBP70904
44703 ORVAULT
08.09.10.28.80


Receive similar ads

For rent near Barjouville