recherche immobilières sur mobile

Apartment for rent in For rent Dijon 1 room 27 m2 Cote d'or (21000)

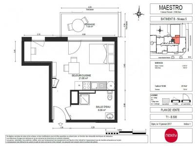
for rent apartment 27 m² region Cote d'or

430 €/month


For rent Dijon 1 room 27 m2 Cote d'or (21000) photo 0
For rent Dijon 1 room 27 m2 Cote d'or (21000) photo 1
For rent Dijon 1 room 27 m2 Cote d'or (21000) photo 2
For rent Dijon 1 room 27 m2 Cote d'or (21000) photo 3

Description

Back
More photos
Map
Favorites

Contact

CM-CIC GESTION IMMOBILIERE
2 Rond Point des Antons CS70304
44703 ORVAULT
08.09.10.28.80 ou 08.10.00.69.36


Receive similar ads

For rent near Dijon