recherche immobilières sur mobile

Apartment for rent in For rent Angers 2 rooms 44 m2 Maine et loire (49100)

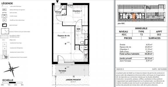
for rent apartment 2 rooms 44 m² region Maine et loire

605 €/month


For rent Angers 2 rooms 44 m2 Maine et loire (49100) photo 0
For rent Angers 2 rooms 44 m2 Maine et loire (49100) photo 1

Description

Back
More photos
Map
Favorites

Contact

CM-CIC GESTION IMMOBILIERE
2 Rond Point des Antons CS70304
44703 ORVAULT
08.09.10.28.80 ou 08.10.00.69.36


Receive similar ads

For rent near Angers