recherche immobilières sur mobile

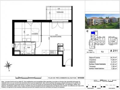
Apartment for rent in For rent Toulon 2 rooms 41 m2 Var (83000)

for rent apartment 2 rooms 41 m² region Var

733 €/month


For rent Toulon 2 rooms 41 m2 Var (83000) photo 0
For rent Toulon 2 rooms 41 m2 Var (83000) photo 1

Description

Back
More photos
Map
Favorites

Contact

CM-CIC GESTION IMMOBILIERE
2 Rond Point des Antons CS70304
44703 ORVAULT
08.09.10.28.80 ou 08.10.00.69.36


Receive similar ads

For rent near Toulon