recherche immobilières sur mobile

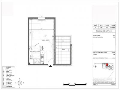
Apartment for rent in For rent Melun 1 room 30 m2 Seine et marne (77000)

for rent apartment 30 m² region Seine et marne

683 €/month


For rent Melun 1 room 30 m2 Seine et marne (77000) photo 0
For rent Melun 1 room 30 m2 Seine et marne (77000) photo 1
For rent Melun 1 room 30 m2 Seine et marne (77000) photo 2

Description

Back
More photos
Map
Favorites

Contact

CM-CIC GESTION IMMOBILIERE
2 Rond Point des Antons CS70304
44703 ORVAULT
08.09.10.28.80 ou 08.10.00.69.36


Receive similar ads

For rent near Melun