recherche immobilières sur mobile

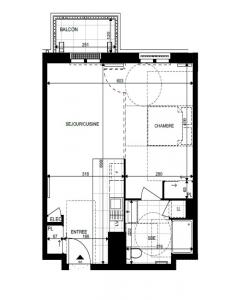
Apartment for rent in For rent Blanc-mesnil 2 rooms 39 m2 Seine saint denis (93150)

for rent apartment 2 rooms 39 m² region Seine saint denis

890 €/month


For rent Blanc-mesnil 2 rooms 39 m2 Seine saint denis (93150) photo 0

Description

Back
More photos
Map
Favorites

Contact

CONFIANCE IMMOBILIER MONPLAISIR LOCATION
108, avenue des frères Lumière
69008 LYON
04.72.78.89.87


Receive similar ads

For rent near Blanc-mesnil