recherche immobilières sur mobile

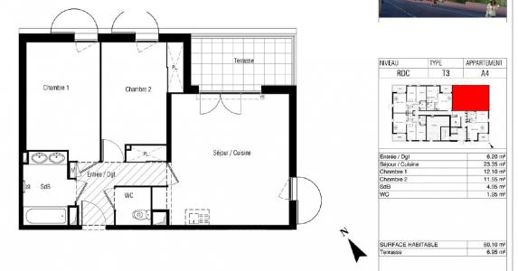
Apartment for rent in For rent Sete 3 rooms 60 m2 Herault (34200)

for rent apartment 3 rooms 60 m² 2 rooms region Herault

747 €/month


For rent Sete 3 rooms 60 m2 Herault (34200) photo 0
For rent Sete 3 rooms 60 m2 Herault (34200) photo 1

Description

Back
More photos
Map
Favorites

Contact

CM-CIC GESTION IMMOBILIERE
2 Rond Point des Antons CS70304
44703 ORVAULT
08.09.10.28.80 ou 08.10.00.69.36


Receive similar ads

For rent near Sete