recherche immobilières sur mobile

Apartment for rent in For rent Saint-herblain 2 rooms 46 m2 Loire atlantique (44800)

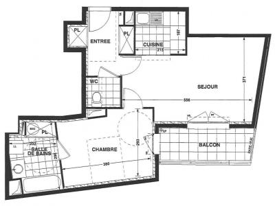
for rent apartment 2 rooms 46 m² region Loire atlantique

612 €/month


For rent Saint-herblain 2 rooms 46 m2 Loire atlantique (44800) photo 0
For rent Saint-herblain 2 rooms 46 m2 Loire atlantique (44800) photo 1

Description

Back
More photos
Map
Favorites

Contact

votre agent immobilier CABINET THIERRY (NANTES 44000)
CABINET THIERRY
du Couedic
44000 NANTES
We speak :
02.40.47.94.43


Receive similar ads

For rent near Saint-herblain