recherche immobilières sur mobile

Apartment for rent in For rent Saint-jean-de-la-ruelle 2 rooms 45 m2 Loiret (45140)

for rent apartment 2 rooms 45 m² region Loiret

595 €/month


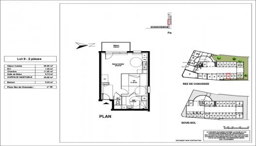
For rent Saint-jean-de-la-ruelle 2 rooms 45 m2 Loiret (45140) photo 0
For rent Saint-jean-de-la-ruelle 2 rooms 45 m2 Loiret (45140) photo 1

Description

Back
More photos
Map
Favorites

Contact

CM-CIC GESTION IMMOBILIERE
2 Rond Point des Antons CS70304
44703 ORVAULT
08.09.10.28.80 ou 08.10.00.69.36


Receive similar ads

For rent near Saint-jean-de-la-ruelle