recherche immobilières sur mobile

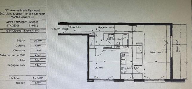
Apartment for rent in For rent Grenoble 2 rooms 53 m2 Isere (38100)

for rent apartment 2 rooms 53 m² region Isere

672 €/month


For rent Grenoble 2 rooms 53 m2 Isere (38100) photo 0

Description

Back
More photos
Map
Favorites

Contact

GRENOBLE HABITAT
44, Av Marcelin Berthelot
38000 GRENOBLE
04.76.84.03.44


Receive similar ads

For rent near Grenoble