recherche immobilières sur mobile

Apartment for rent in For rent Perenchies 2 rooms 46 m2 Nord (59840)

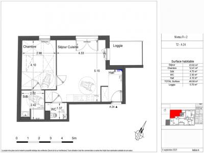
for rent apartment 2 rooms 46 m² region Nord

640 €/month


For rent Perenchies 2 rooms 46 m2 Nord (59840) photo 0
For rent Perenchies 2 rooms 46 m2 Nord (59840) photo 1
For rent Perenchies 2 rooms 46 m2 Nord (59840) photo 2

Description

Back
More photos
Map
Favorites

Contact

CM-CIC GESTION IMMOBILIERE
2 Rond Point des Antons CS70304
44703 ORVAULT
08.09.10.28.80 ou 08.10.00.69.36


Receive similar ads

For rent near Perenchies