recherche immobilières sur mobile

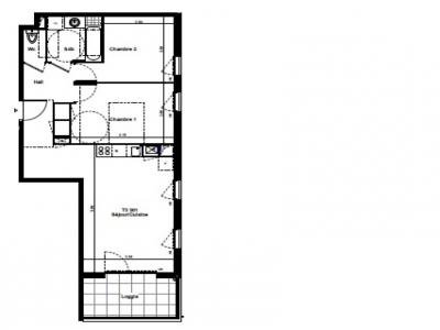
Apartment for rent in For rent Saint-fons 3 rooms 59 m2 Rhone (69190)

for rent apartment 3 rooms 59 m² 2 rooms region Rhone

861 €/month


For rent Saint-fons 3 rooms 59 m2 Rhone (69190) photo 0

Description

Back
More photos
Map
Favorites

Contact

CONFIANCE IMMOBILIER MONPLAISIR LOCATION
108, avenue des frères Lumière
69008 LYON
04.72.78.89.87


Receive similar ads

For rent near Saint-fons