recherche immobilières sur mobile

Apartment for rent in For rent Havre 2 rooms 44 m2 Seine maritime (76600)

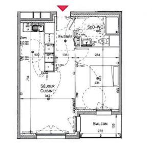
for rent apartment 2 rooms 44 m² region Seine maritime

529 €/month


For rent Havre 2 rooms 44 m2 Seine maritime (76600) photo 0
For rent Havre 2 rooms 44 m2 Seine maritime (76600) photo 1

Description

Back
More photos
Map
Favorites

Contact

votre agent immobilier PFN - GOUILLET (LE HAVRE 76051)
PFN - GOUILLET
111 Av. Foch BP 122
76051 LE HAVRE
02.35.22.17.52 ou 02.32.74.60.94


Receive similar ads

For rent near Havre