recherche immobilières sur mobile

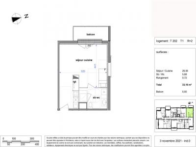
Apartment for rent in For rent Maromme 1 room 33 m2 Seine maritime (76150)

for rent apartment 33 m² region Seine maritime

502 €/month


For rent Maromme 1 room 33 m2 Seine maritime (76150) photo 0

Description

Back
More photos
Map
Favorites

Contact

CM-CIC GESTION IMMOBILIERE
2 Rond Point des Antons CS70304
44703 ORVAULT
08.09.10.28.80 ou 08.10.00.69.36


Receive similar ads

For rent near Maromme