recherche immobilières sur mobile

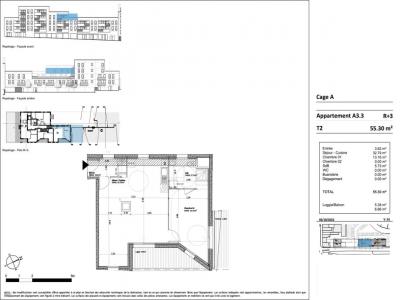
Apartment for rent in For rent Valenciennes 2 rooms 55 m2 Nord (59300)

for rent apartment 2 rooms 55 m² region Nord

645 €/month


For rent Valenciennes 2 rooms 55 m2 Nord (59300) photo 0
For rent Valenciennes 2 rooms 55 m2 Nord (59300) photo 1

Description

Back
More photos
Map
Favorites

Contact

CM - CIC GESTION IMMOBILIERE
2 rond point des AntonsBP70904
44703 ORVAULT
08.09.10.28.80


Receive similar ads

For rent near Valenciennes