Apartment for rent in For rent Orleans 1 room 18 m2 Loiret (45000)
for rent apartment
18 m²
region Loiret
340 €/month
published le 01/04/2026
Description
Ad
Pro
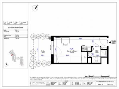
Surface
18
m
2
Room
1
DPE
B
GES
B
Reference
19044666 - 0070310
Published
01/04/2026
Fees
view fees scale
Back
More photos
Map
Favorites
Contact
AFEDIM Gestion
2 Rond Point des Antons CS70304
44703 ORVAULT
08.09.10.28.80
ou
08.10.00.69.36
Your message
Hello, I have noticed your ad on repimmo.com for " Apartment / 1 room(s) / Orleans / 340 euros/month / ref : n°19044666 - 0070310 ". I would like more information. Could you please contact me? Best regards.
Receive similar ads
For rent near Orleans
Orleans
12 ads
Saran
5 ads
Saint-jean-de-la-ruelle
5 ads
Olivet
2 ads
Saint-cyr-en-val
1 ad
Real estate in Orleans (45000)
Home
Search
Favorites
X Close
Usage of cookies
By continuing browsing you accept the use of cookies or similar technologies to provide services and offers adapted to your interests
For more information , manage or edit settings,
clic here