recherche immobilières sur mobile

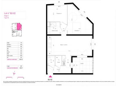
Apartment for rent in For rent Mulhouse 3 rooms 66 m2 Haut rhin (68100)

for rent apartment 3 rooms 66 m² 2 rooms region Haut rhin

782 €/month


For rent Mulhouse 3 rooms 66 m2 Haut rhin (68100) photo 0
For rent Mulhouse 3 rooms 66 m2 Haut rhin (68100) photo 1
For rent Mulhouse 3 rooms 66 m2 Haut rhin (68100) photo 2
For rent Mulhouse 3 rooms 66 m2 Haut rhin (68100) photo 3
For rent Mulhouse 3 rooms 66 m2 Haut rhin (68100) photo 4

Description

Back
More photos
Map
Favorites

Contact

AFEDIM Gestion
2 Rond Point des Antons CS70304
44703 ORVAULT
08.09.10.28.80 ou 08.10.00.69.36


Receive similar ads

For rent near Mulhouse