recherche immobilières sur mobile

Apartment for rent in For rent Clermont-ferrand 2 rooms 43 m2 Puy de dome (63000)

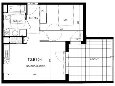
for rent apartment 2 rooms 43 m² region Puy de dome

645 €/month


For rent Clermont-ferrand 2 rooms 43 m2 Puy de dome (63000) photo 0

Description

Back
More photos
Map
Favorites

Contact

CONFIANCE IMMOBILIER MONPLAISIR LOCATION
108, avenue des frères Lumière
69008 LYON
04.72.78.89.87


Receive similar ads

For rent near Clermont-ferrand