recherche immobilières sur mobile

Apartment for rent in For rent Nantes 2 rooms 47 m2 Loire atlantique (44300)

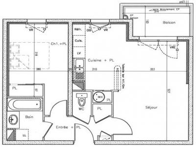
for rent apartment 2 rooms 47 m² region Loire atlantique

637 €/month


For rent Nantes 2 rooms 47 m2 Loire atlantique (44300) photo 0
For rent Nantes 2 rooms 47 m2 Loire atlantique (44300) photo 1

Description

Back
More photos
Map
Favorites

Contact

votre agent immobilier CABINET THIERRY (NANTES 44000)
CABINET THIERRY
du Couedic
44000 NANTES
We speak :
02.40.47.94.43


Receive similar ads

For rent near Nantes