recherche immobilières sur mobile

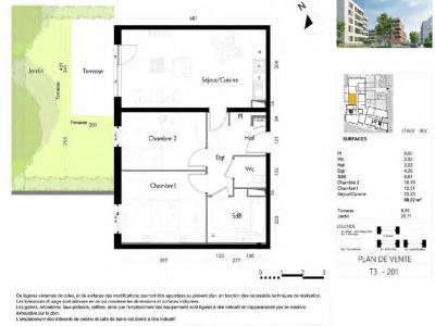
Apartment for rent in For rent Nancy 3 rooms 60 m2 Meurthe et moselle (54000)

for rent apartment 3 rooms 60 m² 2 rooms region Meurthe et moselle

798 €/month


For rent Nancy 3 rooms 60 m2 Meurthe et moselle (54000) photo 0
For rent Nancy 3 rooms 60 m2 Meurthe et moselle (54000) photo 1

Description

Back
More photos
Map
Favorites

Contact

AFEDIM Gestion
2 Rond Point des Antons CS70304
44703 ORVAULT
08.09.10.28.80 ou 08.10.00.69.36


Receive similar ads

For rent near Nancy