recherche immobilières sur mobile

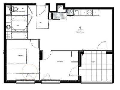
Apartment for rent in For rent Chambery 3 rooms 58 m2 Savoie (73000)

for rent apartment 3 rooms 58 m² region Savoie

793 €/month


For rent Chambery 3 rooms 58 m2 Savoie (73000) photo 0

Description

Back
More photos
Map
Favorites

Contact

CONFIANCE IMMOBILIER MONPLAISIR LOCATION
108, avenue des frères Lumière
69008 LYON
04.72.78.89.87


Receive similar ads

For rent near Chambery