Apartment for rent in For rent Amiens 1 room 27 m2 Somme (80000)
for rent apartment
27 m²
region Somme
390 €/month
published le 24/04/2026
Description
Ad
Pro
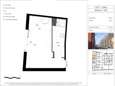
Surface
27
m
2
Room
1
Living
20
m
2
DPE
C
GES
C
Reference
19090875 - 0051650
Published
24/04/2026
Fees
view fees scale
Back
More photos
Map
Favorites
Contact
AFEDIM Gestion
2 Rond Point des Antons CS70304
44703 ORVAULT
08.09.10.28.80
ou
08.10.00.69.36
Your message
Hello, I have noticed your ad on repimmo.com for " Apartment / 1 room(s) / Amiens / 390 euros/month / ref : n°19090875 - 0051650 ". I would like more information. Could you please contact me? Best regards.
Receive similar ads
For rent near Amiens
Real estate in Amiens (80000)
Home
Search
Favorites
X Close
Usage of cookies
By continuing browsing you accept the use of cookies or similar technologies to provide services and offers adapted to your interests
For more information , manage or edit settings,
clic here