recherche immobilières sur mobile

Location Appartement Clermont-ferrand 2 pièces 37 m2 Puy de dome (63100) - 535 € / mois

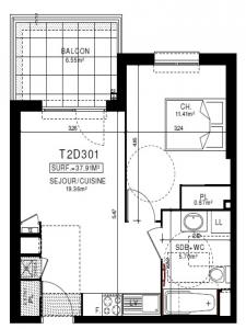
location appartement 2 pièces 37 m² région Puy de dome

535 €/mois


Location Appartement 2 pièces CLERMONT-FERRAND 63100
Annonce Location 2 pièces Appartement Clermont-ferrand 63

Description

D301 LE CLEMENTEL - JOLI BALCON A VIVRE POUR CE SYMPATHIQUE T2 AU 3EME ETAGE D'UNE RESIDENCE NEUVE BBC DE STANDING A PROXIMITE DU TRAM ET DES COMMERCES. Confortable séjour et cuisine US équipée et aménagée (hotte, plaques vitro, four, meubles haut et bas), placard à lEURentrée, une belle chambre en sol parquet avec placard, une salle de bain aménagée avec meuble sous vasque et sèche serviette. Place de parking privative en sous-sol sécurisé. Visiophone. Chauffage individuel gaz. Consommation d'énergie totale entre 346 EUR et 468 EUR par an (prix moyens des énergies indexés au 1er janvier 2021). Les informations sur les risques auxquels ce bien est exposé sont disponibles sur le site Géorisques : www. georisques. gouv. fr
Retour
Autres photos
Plan
Favoris

Contacter l'agence

CONFIANCE IMMOBILIER MONPLAISIR LOCATION
108, avenue des frères Lumière
69008 LYON

Toutes les annonces immobilières de CONFIANCE IMMOBILIER MONPLAISIR LOCATION
04.72.78.89.87


Recevoir des annonces similaires

Location à proximité de Clermont-ferrand