recherche immobilières sur mobile

Appartement à vendre Lannion 1 pièce 28 m2 Cotes d'armor (22300) - 152000 €

vente appartement 28 m² région Cotes d'armor

152 000 €


Vente Appartement LANNION 22300
Annonce Vente Appartement Lannion 22
Acheter Appartement 28 m2 Lannion

Description

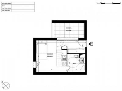
Côtes d'Armor, Lannion (22300), à proximité immédiate du centre historique, de la gare et des commerces, ce studio de 28,35 m² se trouve au dernier étage avec ascenseur. Fonctionnel et lumineux, il conviendra parfaitement pour un investissement locatif, un pied-à-terre ou une première acquisition. Prix 152 000 eurosTTC Honoraires agence à la charge du vendeur. Des prestations de standing pour un ensemble de qualité, d'un EXCELLENT NIVEAU DE CONFORT MODERNE ET D'ISOLATION ainsi que DE FAIBLES CHARGES DE COPROPRIÉTÉ. Notice descriptive complète sur demande. Photos non contractuelles. Remise des clés fin d'année 2027 Plus d'information au 06 22 40 03 11 Selon l'article L.561.5 du Code Monétaire et Financier, pour l'organisation de la visite, la présentation d'une pièce d'identité vous sera demandée. Cette annonce a été rédigée sous la responsabilité éditoriale de Laurence KERMOAL agissant sous le statut d'agent commercial immatriculé au RSAC SAINT BRIEUC 822474235 auprès de SAS PROPRIETES PRIVEES, au capital de 44 920 euros, ZAC LE CHÊNE FERRÉ - 44 ALLÉE DES CINQ CONTINENTS 44120 VERTOU ; SIRET 487 624 777 00040, RCS Nantes. Carte Professionnelle Transactions sur immeubles et fonds de commerce (T) et Gestion immobilière (G) n°CPI 4401 2016 000 010 388 délivrée par la CCI Nantes - Saint Nazaire. Compte séquestre n°30932508467 BPA SAINT-SEBASTIEN-SUR-LOIRE (44230). Garantie GALIAN-SMABTP - 89 rue de la Boétie, 75008 Paris - n°28137 J pour 2 000 000 euros pour T et 120 000 euros pour G. Assurance responsabilité civile professionnelle par GALIAN-SMABTP n° de police 28137.J Mandat réf : 421820 - SC 402 Le professionnel garantit et sécurise votre projet immobilier. Laurence KERMOAL (EI) Agent Commercial - Numéro RSAC : SAINT BRIEUC 822474235 - .
Retour
Autres photos
Plan
Favoris

Contacter l'agence

votre agent immobilier Agence PROPRIETES PRIVEES FNAIM (BASSE-GOULAINE 44115)
Agence PROPRIETES PRIVEES FNAIM
15 RUE DE L'ATLANTIQUE
44115 BASSE-GOULAINE
Nous parlons :

Toutes les annonces immobilières de Agence PROPRIETES PRIVEES FNAIM
06.22.40.03.11 ou 08.05.13.00.17


Recevoir des annonces similaires

Vente à proximité de Lannion