recherche immobilières sur mobile

Appartement à vendre Villejust 1 pièce 23 m2 Essonne (91140) - 66500 €

vente appartement 23 m² région Essonne

66 500 €


Vente Appartement VILLEJUST 91140
Annonce Vente Appartement Villejust 91
Acheter Appartement 23 m2 Villejust
Acheter Appartement Villejust Essonne

Description

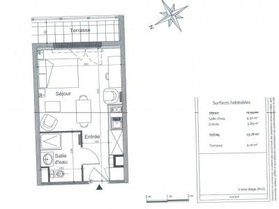
Spécial Investisseur - Exclusivité Forom® Immobilier Appartement T1 au deuxième étage d'environ 23,78 m² situé dans une résidence sur la commune de VILLEJUST. Le logement dispose d'un séjour avec cuisine équipée ouverte (réfrigérateur, plaque électrique, hotte, micro-ondes), une salle d'eau avec WC, un parking ainsi que la jouissance privative et exclusive d'une terrasse. Loyer entièrement garanti et sécurisé avec un bail commercial, aucune contrainte de gestion, faibles charges. C'est le produit idéal pour se constituer facilement un patrimoine immobilier. o Loyer annuel HT : 4 832E / an soit 402E / mois o Rentabilité : 7,27% brute o Charges : 129E / mois o Taxe foncière : 309E / an o Gestionnaire : CAP WEST GROUPE avec date de fin de bail le 27/12/2034 o Indexation selon l'indice ILC o DPE : C o Nombre de lots : 73 Les avantages o Les loyers sont réglés que le logement soit occupé ou non (sans risque de vacances locatives ou d'impayés). o Vous bénéficiez également d'avantages fiscaux liés au « LMNP amortissable », donnant une exonération d'impôt sur les revenus locatifs. o Aucun frais de gestion courante (le gestionnaire vous règle directement le loyer sans intermédiaire ni frais de gestion locative). o Emplacement premium bien au-dessous du prix du marché. La résidence La résidence CAP WEST à VILLEJUST est une résidence moderne, sécurisée et bien équipée. Idéalement située au coeur du pôle d'activité, elle se trouve à proximité des universités et des grandes écoles de la région.
Retour
Autres photos
Plan
Favoris

Contacter l'agence

BONNEFOY IMMOBILIER
26 R Du Faubourg Bonnefoy
31000 TOULOUSE

Toutes les annonces immobilières de BONNEFOY IMMOBILIER
05.67.76.62.50


Recevoir des annonces similaires

Vente à proximité de Villejust