recherche immobilières sur mobile

Location Maison Mesnil-esnard 4 pièces 94 m2 Seine maritime (76240) - 1020 € / mois

location maison 4 pièces 94 m² région Seine maritime

1 020 €/mois


Location Maison 4 pièces MESNIL-ESNARD 76240
Annonce Location 4 pièces Maison Mesnil-esnard 76

Description

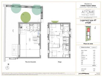
A MESNIL-ESNARD - Dans la résidence neuve "L'ATELIER GASTON SEBIRE", nous vous proposons un cottage C01 T4 de 94.82m². Il se compose au RDC d'une pièce de vie traversante de 43.42m² avec cuisine ouverte (non aménagée et équipée) et donnant sur une terrasse de 17.53m² et un jardin privatif de 81.45m², d'un cellier et d'un WC. A l'étage se trouve une chambre parentale de 14.09m² avec placard et salle d'eau, de deux chambres de 11.02m² et 10m² et d'une salle de bain de 6.03m². Deux place de parking en enfilade en sous-sol 01/02.Chauffage et eau chaude individuel pompe à chaleur. Les honoraires de location TTC (à la charge du locataire) incluent le montant de rédaction des états des lieux facturé pour 284 euros TTC, après réalisation lors de l'entrée dans les lieux. Plus de détails sur notre site AFEDIM. Les informations sur les risques auxquels ce bien est exposé sont disponibles sur le site Géorisques :
Retour
Autres photos
Plan
Favoris

Contacter l'agence

CM-CIC GESTION IMMOBILIERE
2 Rond Point des Antons CS70304
44703 ORVAULT

Toutes les annonces immobilières de CM-CIC GESTION IMMOBILIERE
08.09.10.28.80 ou 08.10.00.69.36


Recevoir des annonces similaires

Location à proximité de Mesnil-esnard