recherche immobilières sur mobile

Location Appartement Margny-les-compiegne 3 pièces 63 m2 Oise (60280) - 830 € / mois

location appartement 3 pièces 63 m² 2 chambres région Oise

830 €/mois


Location Appartement 3 pièces MARGNY-LES-COMPIEGNE 60280
Annonce Location 3 pièces Appartement Margny-les-compiegne 60
Louer Appartement 63 m2 Margny-les-compiegne

Description

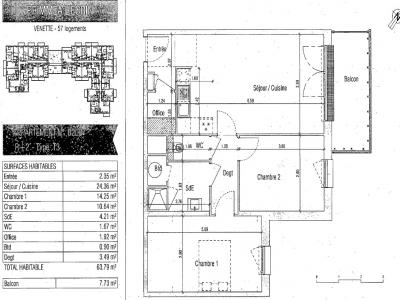
A VENETTE, dans la résidence neuve L'ECRIN, nous vous proposons ce T3 de 63.79m² situé au deuxième étage. Il se compose d'une entrée, d'un séjour/cuisine de 24.36m² avec accès au balcon, d'un dégagement menant à la salle d'eau, aux WC ainsi qu'aux deux chambres de respectivement 14.25m² et 10.64m². Une place de parking complète le lot 83. Chauffage et eau chaude individuel electrique. Entretien parties communes, entretien ascenseur, compris dans les provisions sur charges mensuelles et donnant lieu à une régularisation annuelle. Les honoraires de location TTC (à la charge du locataire) incluent le montant de rédaction des états des lieux facturé pour 210 euros TTC, après réalisation lors de l'entrée dans les lieux. Plus de détails sur notre site AFEDIM. Les informations sur les risques auxquels ce bien est exposé sont disponibles sur le site Géorisques :
Retour
Autres photos
Plan
Favoris

Contacter l'agence

CM - CIC GESTION IMMOBILIERE
2 rond point des AntonsBP70904
44703 ORVAULT

Toutes les annonces immobilières de CM - CIC GESTION IMMOBILIERE
08.09.10.28.80


Recevoir des annonces similaires

Location à proximité de Margny-les-compiegne