recherche immobilières sur mobile

Bureau à vendre Paris-8eme-arrondissement 4 pièces 65 m2 Paris (75008) - 995000 €

vente bureau 4 pièces 65 m² région Paris

995 000 €


Vente Bureau PARIS-8EME-ARRONDISSEMENT 75008
Annonce Vente Bureau Paris-8eme-arrondissement 75
Acheter Bureau 65 m2 Paris-8eme-arrondissement
Acheter Bureau Paris-8eme-arrondissement Paris
Acheter Bureau Paris-8eme-arrondissement 995000 euros

Description

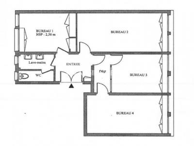
Warren LEVY vous propose ce bien : Situé dans un quartier prestigieux, Meilleurs biens vous présente une surface de bureau en étage avec commercialité situé Avenue Franklin Delano Roosevelt 4 bureaux Honoraires : 5 % HT à la charge de l'acquereur\nLes informations sur les risques auxquels ce bien est exposé sont disponibles sur le site Géorisques :
Retour
Autres photos
Plan
Favoris

Contacter l'agence

MEILLEURS BIENS IMMO
23 Boulevard de la Paix
92400 COURBEVOIE

Toutes les annonces immobilières de MEILLEURS BIENS IMMO
06.51.40.58.97 ou 01.41.16.33.97


Recevoir des annonces similaires

Vente à proximité de Paris-8eme-arrondissement