recherche immobilières sur mobile

Location Appartement Toulouse 2 pièces 34 m2 Haute garonne (31200) - 658 € / mois

location appartement 2 pièces 34 m² région Haute garonne

658 €/mois


Location Appartement 2 pièces TOULOUSE 31200
Annonce Location 2 pièces Appartement Toulouse 31
Louer Appartement 34 m2 Toulouse
Louer Appartement Toulouse Haute garonne
Louer Appartement Toulouse 658 euros

Description

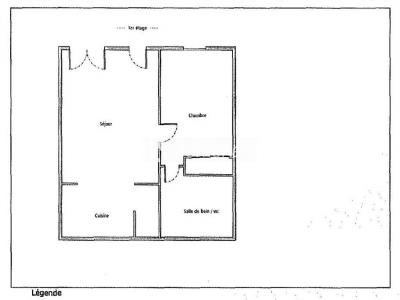
A LOUER 31200 Toulouse. Route de Launaguet. Au sein d'une résidence avec piscine, appartement de type T2 de 34m² meublé situé au premier et dernier étage. Cuisine aménagée et équipée ouverte sur la pièce de vie. Chambre avec placard, salle de bains avec wc. Place de parking privative en extérieur, Jardin partagé. Proche commerces et bus. . HK HomeKare immobilier : VENTE - LOCATION - GESTION - SYNDIC
Retour
Autres photos
Plan
Favoris

Contacter l'agence

votre agent immobilier HK HomeKare (LABEGE 31670)
HK HomeKare
SIEGE : 80 Rue Pierre et Marie CURIE, IMMOSKY
31670 LABEGE
Nous parlons :

Toutes les annonces immobilières de HK HomeKare
06.59.60.79.19 ou 05.61.62.58.22
Voir le site de l'agent


Recevoir des annonces similaires

Location à proximité de Toulouse