recherche immobilières sur mobile

Appartement à vendre Paris-14eme-arrondissement 4 pièces 104 m2 Paris (75014) - 1495000 €

vente appartement 4 pièces 104 m² 3 chambres région Paris

1 495 000 €


Vente Appartement 4 pièces PARIS-14EME-ARRONDISSEMENT 75014
Annonce Vente 4 pièces Appartement Paris-14eme-arrondissement 75
Acheter Appartement 104 m2 Paris-14eme-arrondissement
Acheter Appartement Paris-14eme-arrondissement Paris

Description

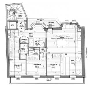
VIR (Vente d'Immeuble à Rénover) : Au 5ème étage avec ascenseur d'un immeuble ancien réhabilité, de très bon standing à deux pas du métro Pernety, au c?ur d'un quartier commerçant, un appartement quatre pièces de 87,45m2 loi Carrez comprenant, une entrée, un séjour, une cuisine ouverte aménagée et équipée ouvrant sur un balcon, une buanderie, trois chambres, deux salles de bains et WC séparé. Appartement calme et baigné de lumière. Grand local vélo / poussettes au RDC et caves accessibles par ascenseur au sous-sol. Professions libérales autorisées. Tout le charme de l'ancien avec les avantages des constructions modernes. Création d'espaces extérieurs et végétalisés, pour ainsi contribuer à la qualité des logements, au rafraichissement urbain et la continuité végétale
Retour
Autres photos
Plan
Favoris

Contacter l'agence

DE FERLA PANTHEON
13 rue Gay Lussac
75005 PARIS

Toutes les annonces immobilières de DE FERLA PANTHEON
01.55.26.91.30


Recevoir des annonces similaires

Vente à proximité de Paris-14eme-arrondissement