recherche immobilières sur mobile

Location Appartement Franconville 2 pièces 51 m2 Val d'Oise (95130) - 1170 € / mois

location appartement 2 pièces 51 m² région Val d'oise

1 170 €/mois


Location Appartement 2 pièces FRANCONVILLE 95130
Annonce Location 2 pièces Appartement Franconville 95
Louer Appartement 51 m2 Franconville

Description

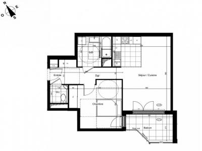
À LOUER - APPARTEMENT T2 NEUF À FRANCONVILLE Résidence "L'UNIQUE" - 120 Rue de la Station 95130 Franconville OIKO GESTION vous invite à venir découvrir cet appartement neuf de type T2 de 52m² dans un cadre moderne et confortable. Situé au 3e étage, cet appartement offre un séjour de 23m² lumineux avec un espace cuisine ouvrant sur un beau balcon, 1 chambres avec placard intégré. Une place de parking complète ce bien. Chauffage individuel électrique et Eau chaude collective Ce bien respecte les dernières normes énergétiques, garantissant un confort optimal. Un emplacement idéal : o À seulement quelques minutes de la gare de Franconville - Le Plessis-Bouchard (RER C et Transilien H), offrant un accès rapide à Paris. o Proximité des axes routiers A15 et A115, facilitant l'accès à La Défense et Cergy. o Commerces à proximité, supermarchés, ainsi qu'une multitude de restaurants à quelques pas. Écoles et services : o École élémentaire Paul Bert, Collège Jean François Clervoy, et Lycée Jean Monnet. o Plusieurs crèches et garderies accessibles à pied. Santé et services médicaux : Centre médical Franconville, avec une grande variété de professionnels de santé à proximité. Contactez nous dès maintenant au 01 40 57 69 86 pour organiser une visite ! Les informations sur les risques auxquels ce bien est exposé sont disponibles sur le site Géorisques : Photos non contractuelles
Retour
Autres photos
Plan
Favoris

Contacter l'agence

OIKO GESTION
15 RUE THEODULE RIBOT
75017 PARIS

Toutes les annonces immobilières de OIKO GESTION
01.40.57.69.80 ou 01.40.57.69.86


Recevoir des annonces similaires

Location à proximité de Franconville