recherche immobilières sur mobile

Appartement à vendre Lomme 5 pièces 92 m2 Nord (59160) - 264000 €

vente appartement 5 pièces 92 m² 4 chambres région Nord

264 000 €


Vente Appartement 5 pièces LOMME 59160
Annonce Vente 5 pièces Appartement Lomme 59
Acheter Appartement 92 m2 Lomme
Acheter Appartement Lomme Nord
Acheter Appartement Lomme 264000 euros

Description

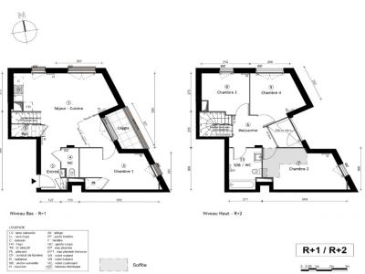
Au sein d'une résidence située à l'angle de la rue Jules Guesde et de la rue Albert Thomas, à deux pas du métro « Maison des Enfants «, des commerces, transports en commun et axes routiers. A vendre, en location-accession*, appartement T5 EN DUPLEX de 92 m² habitables, avec une loggia de 4m² . Livraison prévue décembre 2025. Prix : 264 000 E (comprenant une place de stationnement en sous-sol) (* location-accession: prix en TVA réduite à 5,5% - exonération de la taxe foncière pendant 15 ans - phase de location de minimum 1 an et maximum 2 ans avant achat) Contacter Mme Juliette LACROIX 0623130990
Retour
Autres photos
Plan
Favoris

Contacter l'agence

VILOGIA SA
74, Rue Jean Jaurès BP 10430
59650 Villeneuve d'Ascq

Toutes les annonces immobilières de VILOGIA SA
09.69.37.07.07 ou 03.59.35.50.31


Recevoir des annonces similaires

Vente à proximité de Lomme