recherche immobilières sur mobile

Location Appartement Fleury-sur-orne 3 pièces 59 m2 Calvados (14123) - 820 € / mois

location appartement 3 pièces 59 m² 2 chambres région Calvados

820 €/mois


Location Appartement 3 pièces FLEURY-SUR-ORNE 14123
Annonce Location 3 pièces Appartement Fleury-sur-orne 14
Louer Appartement 59 m2 Fleury-sur-orne

Description

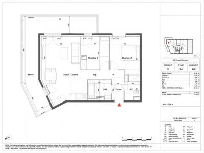
A FLEURY SUR ORNE - Dans la résidence neuve DOMAINE FLEURY, nous vous proposons un appartement T3 N°4502 de 59.90m² situé au 5ème étage. Il se compose d'une entrée, d'une pièce de vie de 26.36m² avec cuisine ouverte et aménagée avec plaque de cuisson, four, et hotte. Possibilité d'installer un lave-vaisselle. Placards de rangement intégrés. donnant sur un balcon de 25.09m², de deux chambres avec placard de 11.58m² et 9.11m², d'une salle de bain de 4.29m² et d'un WC séparé. Cet appartement dispose d'une place de stationnement N°215. Chauffage collectif. Ascenseur, espaces verts communs et entretien parties communes, compris dans les provisions sur charges mensuelles et donnant lieu à une régularisation annuelle. Les honoraires de location TTC (à la charge du locataire) et le montant de rédaction des états des lieux facturé 179 E TTC, après réalisation lors de l'entrée dans les lieux. Disponibilité au 1er août 2025. Plus de détails sur ce logement sur notre site internet AFEDIM. Les informations sur les risques auxquels ce bien est exposé sont disponibles sur le site Géorisques :
Retour
Autres photos
Plan
Favoris

Contacter l'agence

CM - CIC GESTION IMMOBILIERE
2 rond point des AntonsBP70904
44703 ORVAULT

Toutes les annonces immobilières de CM - CIC GESTION IMMOBILIERE
08.09.10.28.80


Recevoir des annonces similaires

Location à proximité de Fleury-sur-orne