recherche immobilières sur mobile

Location Appartement Chenove 1 pièce 32 m2 Cote d'or (21300) - 540 € / mois

location appartement 32 m² région Cote d'or

540 €/mois


Location Appartement CHENOVE 21300
Annonce Location Appartement Chenove 21

Description

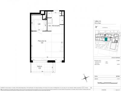
A CHENOVE - Dans la résidence neuve CAP'CANAL, nous vous proposons un appartement T1 de 32.75m² situé au 5ème étage. Il se compose d'une entrée avec placard et kitchenette (plaques de cuisson, hotte, frigo), d'une grande pièce de vie de 23.20m² donnant sur un balcon de 5.15m² et d'une salle de bain avec WC. Cet appartement dispose également d'une place de stationnement N°51 en sous-sol. Chauffage et eau chaude individuel au gaz. Entretien parties communes, ascenseur et espaces verts communs, compris dans les provisions sur charges mensuelles et donnant lieu à une régularisation annuelle. Les honoraires de location TTC (à la charge du locataire) incluent le montant de rédaction des états des lieux facturé pour 98 euros TTC, après réalisation lors de l'entrée dans les lieux. Disponibilité prévue courant octobre 2025. Plus de détails sur notre site internet AFEDIM. Logement neuf en cours de construction - DPE à venir Les informations sur les risques auxquels ce bien est exposé sont disponibles sur le site Géorisques :
Retour
Autres photos
Plan
Favoris

Contacter l'agence

CM-CIC GESTION IMMOBILIERE
2 Rond Point des Antons CS70304
44703 ORVAULT

Toutes les annonces immobilières de CM-CIC GESTION IMMOBILIERE
08.09.10.28.80 ou 08.10.00.69.36


Recevoir des annonces similaires

Location à proximité de Chenove