recherche immobilières sur mobile

Location Appartement Wattrelos 3 pièces 68 m2 Nord (59150) - 860 € / mois

location appartement 3 pièces 68 m² 2 chambres région Nord

860 €/mois


Location Appartement 3 pièces WATTRELOS 59150
Annonce Location 3 pièces Appartement Wattrelos 59

Description

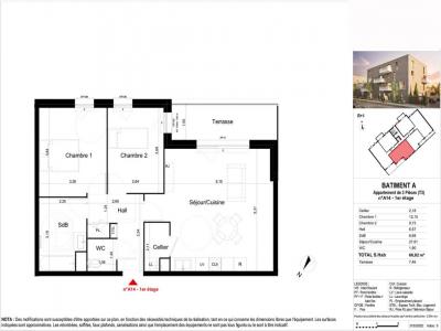
À Wattrelos, nous vous proposons cet appartement T3 de 67,47m² situé au 1er étage de la résidence Flanelle, orienté sud-est. Il se compose d'un hall d'entrée avec placard, d'un séjour avec cuisine aménagée et équipée, de deux chambres de 12,08m² et 9,65m², d'une salle de bain avec baignoire de 4,68m² et d'un cellier. Pour compléter ce lot, vous disposez également d'une place de parking intérieure sécurisée. La résidence est équipée d'un ascenseur, d'un local à ordures ménagères et d'espaces verts. Les honoraires de location TTC (à la charge du locataire) incluent le montant de rédaction des états des lieux facturé pour 202 euros TTC, après réalisation lors de l'entrée dans les lieux. Disponibilité prévisionnelle courant septembre 2025. Plus de détails sur notre site AFEDIM. Logement neuf en cours de construction - DPE à venir Les informations sur les risques auxquels ce bien est exposé sont disponibles sur le site Géorisques :
Retour
Autres photos
Plan
Favoris

Contacter l'agence

CM-CIC GESTION IMMOBILIERE
2 Rond Point des Antons CS70304
44703 ORVAULT

Toutes les annonces immobilières de CM-CIC GESTION IMMOBILIERE
08.09.10.28.80 ou 08.10.00.69.36


Recevoir des annonces similaires

Location à proximité de Wattrelos