recherche immobilières sur mobile

Location Appartement Roche-sur-yon 2 pièces 40 m2 Vendee (85000) - 676 € / mois

location appartement 2 pièces 40 m² région Vendee

676 €/mois


Location Appartement 2 pièces ROCHE-SUR-YON 85000
Annonce Location 2 pièces Appartement Roche-sur-yon 85

Description

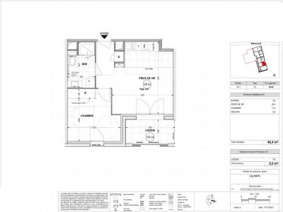
A La Roche sur Yon, dans la Résidence neuve LE MARENGO, nous vous proposons un appartement T2 n°B102 de 40.40m² situé au 1er étage. Il comprend un séjour avec cuisine donnant sur une loggia de 5.50m², d'une chambre et une salle d'eau avec WC. A l'extérieur, un parking n°17. Eau chaude collective par pompe à chaleur et chauffage individuel électrique. Eau chaude, entretien parties communes et espaces verts communs, compris dans les provisions sur charges mensuelles et donnant lieu à une régularisation annuelle. Les honoraires de location TTC (à la charge du locataire) incluent le montant de rédaction des états des lieux facturé pour 121 euros TTC, après réalisation lors de l'entrée dans les lieux. Disponibilité prévisionnelle au 22/10/2025. Pour plus de détails sur ce logement, vous pouvez consulter la fiche descriptive de ce bien, sur notre site internet AFEDIM. Logement en cours de construction - DPE à venir. Les informations sur les risques auxquels ce bien est exposé sont disponibles sur le site Géorisques :
Retour
Autres photos
Plan
Favoris

Contacter l'agence

CM-CIC GESTION IMMOBILIERE
2 Rond Point des Antons CS70304
44703 ORVAULT

Toutes les annonces immobilières de CM-CIC GESTION IMMOBILIERE
08.09.10.28.80 ou 08.10.00.69.36


Recevoir des annonces similaires

Location à proximité de Roche-sur-yon