recherche immobilières sur mobile

Location Appartement Angers 2 pièces 44 m2 Maine et loire (49100) - 615 € / mois

location appartement 2 pièces 44 m² région Maine et loire

615 €/mois


Location Appartement 2 pièces ANGERS 49100
Annonce Location 2 pièces Appartement Angers 49

Description

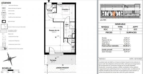
ANGERS, dans la résidence neuve QUINTESCENCE, nous vous proposons un appartement T2 (n°003), d'une superficie de 44.40 m² situé au RDC. Il se compose d'une entrée, d'un séjour-cuisine de 23.04 m², cuisine aménagée : four, plaque et hotte donnant sur un jardin privatif avec terrasse de 22.15 m², d'une chambre de 11.19 m², et d'une salle d'eau avec WC. Emplacement parking n°3. Exposition sud. Chauffage et eau chaude , eau froide individuels électriques. Ascenseur, espaces verts communs et entretien parties communes, compris dans les provisions sur charges mensuelles et donnant lieu à une régularisation annuelle. Les honoraires de location TTC (à la charge du locataire) incluent le montant de rédaction des états des lieux facturé 133 euros TTC, après réalisation lors de l'entrée dans les lieux. Logement disponible au 5 août Les informations sur les risques auxquels ce bien est exposé sont disponibles sur le site Géorisques :
Retour
Autres photos
Plan
Favoris

Contacter l'agence

CM-CIC GESTION IMMOBILIERE
2 Rond Point des Antons CS70304
44703 ORVAULT

Toutes les annonces immobilières de CM-CIC GESTION IMMOBILIERE
08.09.10.28.80 ou 08.10.00.69.36


Recevoir des annonces similaires

Location à proximité de Angers