recherche immobilières sur mobile

Location Appartement Grenoble 3 pièces 67 m2 Isere (38000) - 811 € / mois

location appartement 3 pièces 67 m² région Isere

811 €/mois


Location Appartement 3 pièces GRENOBLE 38000
Annonce Location 3 pièces Appartement Grenoble 38

Description

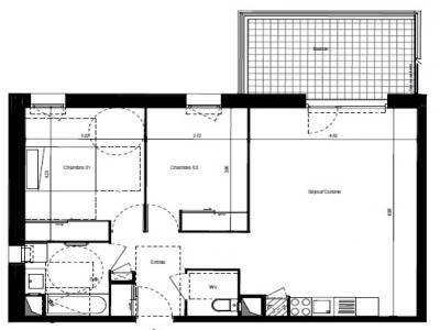
B402 LE GAIA CALME ET LUMINOSITE POUR CE BEAU T3 AU 4EME ETAGE AVEC CONFORTABLE BALCON DE PRES DE 13M2, SITUE DANS UNE RESIDENCE RECENTE A FAIBLE CONSOMATION ENERGETIQUE - superbe séjour de plus de 30m2 avec cuisine équipée et aménagée (hotte, plaques vitro, four, meuble haut et bas), deux belles chambres en sol parquet avec placard de rangement aménagé dont une grande de plus de 13m2, une SDB avec meuble sous vasque et sèche serviettes, garage fermé en sous-sol sécurisé. Chauffage gaz individuel, eau froide incluse dans les charges. Consommation d'énergie totale entre 407EUR et 551EUR par an (prix moyens des énergies indexés au 01/01/2021). Les informations sur les risques auxquels ce bien est exposé sont disponibles sur le site Géorisques : www. georisques. gouv. fr
Retour
Autres photos
Plan
Favoris

Contacter l'agence

CONFIANCE IMMOBILIER MONPLAISIR LOCATION
108, avenue des frères Lumière
69008 LYON

Toutes les annonces immobilières de CONFIANCE IMMOBILIER MONPLAISIR LOCATION
04.72.78.89.87


Recevoir des annonces similaires

Location à proximité de Grenoble