recherche immobilières sur mobile

Location Appartement Queue-en-brie 2 pièces 46 m2 Val de Marne (94510) - 907 € / mois

location appartement 2 pièces 46 m² région Val de marne

907 €/mois


Location Appartement 2 pièces QUEUE-EN-BRIE 94510
Annonce Location 2 pièces Appartement Queue-en-brie 94

Description

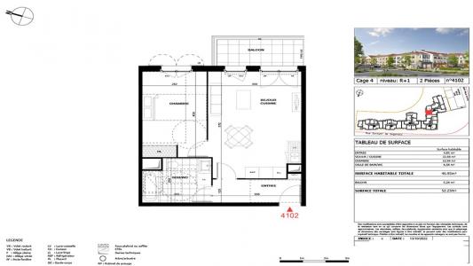
À La Queue-en-Brie, un appartement T2 de 46,95m² situé au 1er étage de la résidence Tilia. Il se compose d'une entrée de 4,85m², d'un séjour/cuisine aménagée et équipée de 22,58m², d'une chambre de 12,94m² avec placard et d'une salle de bains avec WC de 6,58m². Un stationnement au rez-de-chaussée. L'appartement est équipé d'un système de chauffage collectif et d'une production d'eau chaude collective par chaudière à gaz. Les frais d'entretien des parties communes et l'eau froide sont compris dans les provisions sur charges mensuelles et donnent lieu à une régularisation annuelle. Les honoraires de location TTC (à la charge du locataire) incluent le montant de rédaction des états des lieux facturé pour 140 euros TTC, après réalisation lors de l'entrée dans les lieux. Disponibilité prévisionnelle au 15/09/2025. Pour plus de détails sur ce logement, vous pouvez consulter la fiche descriptive de ce bien, sur notre site internet AFEDIM. Logement en cours de construction - DPE à venir. Les informations sur les risques auxquels ce bien est exposé sont disponibles sur le site Géorisques :
Retour
Autres photos
Plan
Favoris

Contacter l'agence

CM - CIC GESTION IMMOBILIERE
2 rond point des AntonsBP70904
44703 ORVAULT

Toutes les annonces immobilières de CM - CIC GESTION IMMOBILIERE
08.09.10.28.80


Recevoir des annonces similaires

Location à proximité de Queue-en-brie