recherche immobilières sur mobile

Location Appartement Tours 2 pièces 40 m2 Indre et loire (37100) - 595 € / mois

location appartement 2 pièces 40 m² région Indre et loire

595 €/mois


Location Appartement 2 pièces TOURS 37100
Annonce Location 2 pièces Appartement Tours 37
Louer Appartement 40 m2 Tours
Louer Appartement Tours Indre et loire

Description

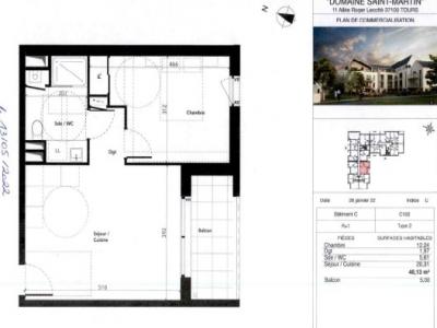
A TOURS, dans la résidence neuve "DOMAINE ST MARTIN", nous vous proposons ce T2 de 40.13m² situé au 1er étage avec ascenseur. Le logement se compose d'une pièce de vie avec cuisine aménagée donnant sur une loggia ainsi qu'une salle d'eau avec meuble vasque et WC et une chambre avec placard. Une place de parking complète le lot. Chauffage et eau chaude individuel gaz. Entretien parties communes, entretien ascenseur, compris dans les provisions sur charges mensuelles et donnant lieu à une régularisation annuelle. Les honoraires de location TTC (à la charge du locataire) incluent le montant de rédaction des états des lieux facturé pour 120 euros TTC, après réalisation lors de l'entrée dans les lieux. Disponibilité prévisionnelle Juillet 2025. Plus de détails sur notre site AFEDIM. Les informations sur les risques auxquels ce bien est exposé sont disponibles sur le site Géorisques :
Retour
Autres photos
Plan
Favoris

Contacter l'agence

CM-CIC GESTION IMMOBILIERE
2 Rond Point des Antons CS70304
44703 ORVAULT

Toutes les annonces immobilières de CM-CIC GESTION IMMOBILIERE
08.09.10.28.80 ou 08.10.00.69.36


Recevoir des annonces similaires

Location à proximité de Tours