recherche immobilières sur mobile

Appartement à vendre Monteux 4 pièces 74 m2 Vaucluse (84170) - 265000 €

vente appartement 4 pièces 74 m² 3 chambres région Vaucluse

265 000 €


Vente Appartement 4 pièces MONTEUX 84170
Annonce Vente 4 pièces Appartement Monteux 84
Acheter Appartement 74 m2 Monteux
Acheter Appartement Monteux Vaucluse
Acheter Appartement Monteux 265000 euros

Description

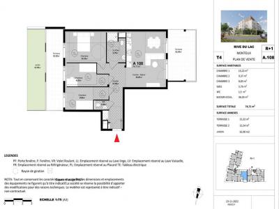
OPPORTUNITÉ vous est proposée par Pascal et sylvie BECOURT : Vaucluse 84170 MONTEUX - 265000 Euros (Frais de notaire INCLUS)- Dernières normes énergétique. Vue dégagée sur le Lac de Monteux. Appartement disponible immédiatement. Magnifique quatre pièces de presque 75m² au 1er étage avec ascenseur, salon séjour cuisine aménagée de 23 m², trois chambres, et une terrasse de 15,54 m² donnant sur le lac de Monteux et une autre de 15,32m2 avec jardin de 17 m2. Gros plus sur cette offre, 2 parkings et les frais de notaires inclus. Idéalement situé au coeur de la Provence, entre Avignon et Orange et à 10 minutes de l'autoroute, découvrez le nouvel écoquartier Beaulieu ; avec son parc paysager de 38 hectares, son magnifique lac, sa plage et ses animations. Bientôt restaurant Mc Donald, supermarché, salle de sport. Véritable pôle d'attractivité et de tourisme : l'association unique d'une offre de shopping et de services et deux grands parcs de loisirs, Spirou et Wave Island. Située au bord du lac, dans un écrin de verdure, la résidence met l'accent sur la luminosité, le confort, le bien-être et se vit comme une invitation à la détente. Optimisation de l'espace, distribution fonctionnelle, isolation thermique et phonique renforcée, chauffage Climatisation, Eau chaude thermodynamique, cuisine aménagée, volets roulants électriques, wc suspendus, carrelage grès cérame 60x60 cm. Nombre de lots à la vente : 3 (1 appartement et 2 parkings). Charges courantes annuelles "prévisionnelles" de 1 100 Euros. Procédures diligentées contre le syndicat de copropriété : NON. 265 000 euros frais de notaire inclus (honoraires à la charge du vendeur) Pour visiter et vous accompagner dans votre projet contactez Pascal BECOURT 7/7 sur Carpentras au 0607. 98.09.36 ou par courriel à Cette présente annonce a été rédigée sous la responsabilité éditoriale de Pascal BECOURT agissant sous le statut d'agent commercial immatriculé au RSAC d'Avigno
Retour
Autres photos
Plan
Favoris

Contacter l'agence

votre agent immobilier Agence PROPRIETES PRIVEES FNAIM (BASSE-GOULAINE 44115)
Agence PROPRIETES PRIVEES FNAIM
15 RUE DE L'ATLANTIQUE
44115 BASSE-GOULAINE
Nous parlons :

Toutes les annonces immobilières de Agence PROPRIETES PRIVEES FNAIM
06.07.98.09.36 ou 08.05.13.00.17


Recevoir des annonces similaires

Vente à proximité de Monteux