recherche immobilières sur mobile

Location Appartement Valenciennes 2 pièces 55 m2 Nord (59300) - 645 € / mois

location appartement 2 pièces 55 m² région Nord

645 €/mois


Location Appartement 2 pièces VALENCIENNES 59300
Annonce Location 2 pièces Appartement Valenciennes 59

Description

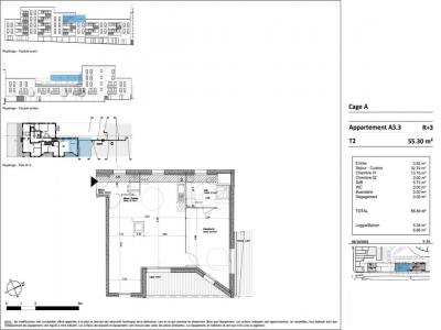
A VALENCIENNES - Dans la résidence ESKO, nous vous proposons un appartement T2 N°A3.3 de 55.30m². Il se compose d'une entrée avec placard, d'une pièce de vie de 32.79m² avec cuisine ouverte et donnant sur une loggia de 6.86m² et d'une chambre de 13.16m² avec accès privatif à la salle de bain avec WC. Cet appartement dispose d'une place de stationnement N°14. Chauffage et eau chaude individuel au gaz. Entretien parties communes, ascenseur et espaces verts communs, compris dans les provisions sur charges mensuelles et donnant lieu à une régularisation annuelle. Les honoraires de location TTC (à la charge du locataire) incluent le montant de rédaction des états des lieux facturé pour 165 euros TTC, après réalisation lors de l'entrée dans les lieux. Disponibilité prévue courant décembre 2025. Plus de détails sur notre site internet AFEDIM. Logement neuf en cours de construction - DPE à venir Les informations sur les risques auxquels ce bien est exposé sont disponibles sur le site Géorisques :
Retour
Autres photos
Plan
Favoris

Contacter l'agence

CM - CIC GESTION IMMOBILIERE
2 rond point des AntonsBP70904
44703 ORVAULT

Toutes les annonces immobilières de CM - CIC GESTION IMMOBILIERE
08.09.10.28.80


Recevoir des annonces similaires

Location à proximité de Valenciennes