recherche immobilières sur mobile

Location Appartement Lyon-1er-arrondissement 1 pièce 30 m2 Rhone (69001) - 598 € / mois

location appartement 30 m² région Rhone

598 €/mois


Location Appartement LYON-1ER-ARRONDISSEMENT 69001
Annonce Location Appartement Lyon-1er-arrondissement 69

Description

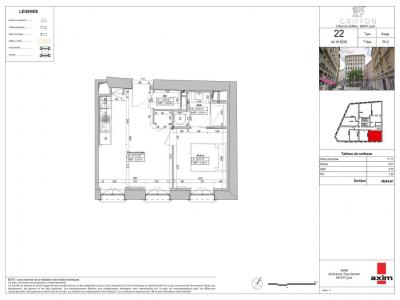
Situé dans le premier arrondissement de Lyon, dans la résidence GRIFFON, nous vous proposons un appartement T1 bis de 30.44m2. Situé au 2ème étage, le logement comprend une pièce de vie de 17.17m2 avec cuisine aménagée ouverte (meubles, plaque, hotte). Une alcove de 8.27m2, une salle d'eau et WC séparés. Entretien parties communes, entretien ascenseur et espaces verts communs, compris dans les provisions sur charges mensuelles et donnant lieu à une régularisation annuelle. Le montant des honoraires mentionné inclut le montant des honoraires de location (visite, constitution dossier, bail) pour 304E TTC et le montant des honoraires de rédaction des états des lieux pour 91E TTC. Pour plus de détails sur ce logement, vous pouvez consulter la fiche descriptive de ce bien, sur notre site internet afedim. Les informations sur les risques auxquels ce bien est exposé sont disponibles sur le site Géorisques :
Retour
Autres photos
Plan
Favoris

Contacter l'agence

CM-CIC GESTION IMMOBILIERE
2 Rond Point des Antons CS70304
44703 ORVAULT

Toutes les annonces immobilières de CM-CIC GESTION IMMOBILIERE
08.09.10.28.80 ou 08.10.00.69.36


Recevoir des annonces similaires

Location à proximité de Lyon-1er-arrondissement