recherche immobilières sur mobile

Terrain à vendre Teste-de-buch 790 m2 Gironde (33260) - 250000 €

vente terrain 790 m² région Gironde

250 000 €


Vente Terrain TESTE-DE-BUCH 33260
Annonce Vente Terrain Teste-de-buch 33
Acheter Terrain 790 m2 Teste-de-buch
Acheter Terrain Teste-de-buch Gironde

Description

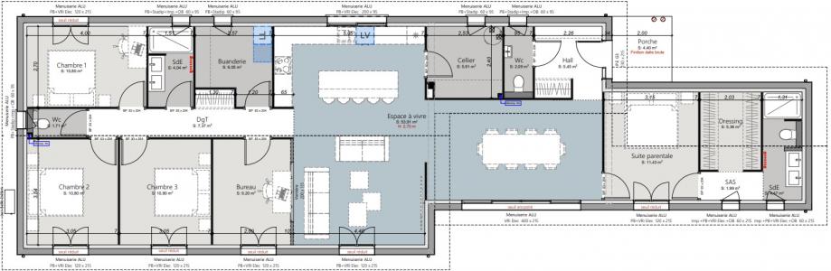
TERRAIN D'EXCEPTION DE 790 M² DANS ÉCRIN DE VERDURE - SECTEUR SÉCARY Nichée au c?ur d'un secteur résidentiel, cette parcelle arborée de 790 m², à l'abri des regards, offre une toile parfaite pour créer votre cocon sur le Bassin d'Arcachon. Localisation idéale : À deux pas du centre-ville de La Teste, Accès rapide à la gare, Plages du Bassin à quelques minutes, Commerces et écoles à proximité immédiate. Ce terrain en zone UP du PLU offre une belle constructibilité, une forme équilibrée et un linéaire optimal pour un projet architectural soigné. Constructeur de maisons individuelles sur mesure, tous nos plans sont modifiables selon vos besoins et vos envies. Nous vous avons sélectionné ce terrain par l'intermédiaire de nos partenaires fonciers dans le cadre d'un projet avec GIB CONSTRUCTION. Pour plus de renseignements, vous pouvez contacter Géraldine par téléphone O675710291 (si pas de réponse car en RDV, envoyez un SMS avec vos coordonnées). GIB Construction, 2ème génération de constructeurs bâtisseurs en GIRONDE, 19 agences de proximité dans le Sud-Ouest pour vous accompagner dans votre projet personnalisé sur-mesure.
Retour
Autres photos
Plan
Favoris

Contacter l'agence

GIB CONSTRUCTION
Z.A. du Bedat
33650 SAINT MÉDARD D'EYRANS

Toutes les annonces immobilières de GIB CONSTRUCTION
05.57.96.12.42


Recevoir des annonces similaires

Vente à proximité de Teste-de-buch